DOBAI ÉPÍTÉSZIRODA KFT


Posta Számítástechnikai és Szervezési Intézet (PSZSZI), Budapest, IX. Távíró utca (No. 2)

❮No. 1

lista

No. 3 ❯

1/8
Makett, nézet dél felől
2/8
Makett, nézet keletfelől
3/8
Makett, madártávlat 1.
4/8
makett, madártávlat 2.
5/8
Általános emeleti alaprajz> tervlap
6/8
Hosszmetszet> tervlap
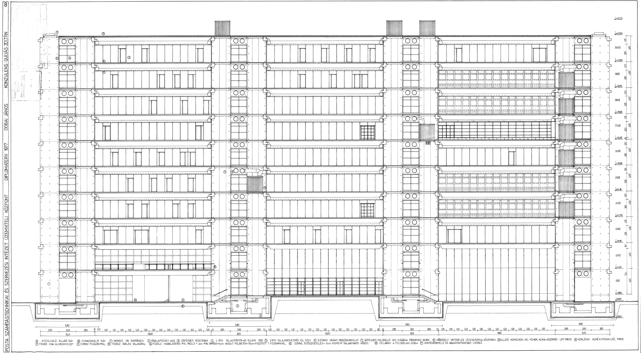
7/8
Északkaleti homlokzat> tervlap
388
Északnyugati homlokzat> tervlap

A PSZSZI épülete a magyar Posta akkori számítástechnikai igényeit foglalta magába. nagygépes számítógéptermek, sokféle kiszolgáló helyiség, adminisztráció, a nagy dolgozói létszámnak megfelelő szociális területek. Mindez bonyolult funkcionális kapcsolatrandszerben. A tervem (az akkor levegőben lévő) strukturalista elveket próbálta meg követni. A főfunkciók nagyfesztávolságú álpadlóval és álmennyezettel ellátott, a egységes szerkesztési hálójú terekbe kerültek. A kiszolgáló és a függőleges közlekedést biztosító funkciók konténerszerűen a függőleges teherhordást biztosító vasbeton megastruktúra öbleibe kerültek, úgy hogy elavulásuk, elhasználódásuk miatt könnyebben kicserélhetők, átrendezhetők legyenek.

1977. BME Ipari és Mezőgazdasági Épülettervezési Tanszék. Diplomaterv. Építész: Dobai János, konzulens: Gulyás Zoltán. Díplomadíj pályázat, dícséret.